不動産情報
株式会社新東陽では、滋賀県大津市を中心に土地・戸建の分譲販売を行なっております。
土地と建物がセットになったお得な建売プランもございます。
新着情報
【完成しました!】長浜市朝日町 中古戸建て
- 種別
- 中古戸建て分譲
- 価格
- 12,600,000円(税込)
- 面積
- 土地48.25㎡ 14.59坪 / 建物108.15㎡ 32.71坪
- 交通
- 長浜駅
- 所在地
- 長浜市朝日町3-11
🏠駅近!便利!
●JR長浜駅まで 徒歩約5分
●黒壁スクエアまで 徒歩約5分
●フレンドマート長浜駅前店まで 徒歩約4分
🏠こんな感じになりました☺🏠






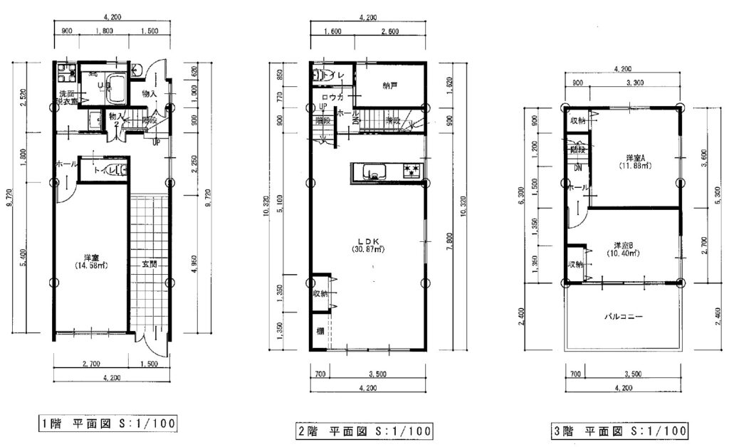
【間取り 3LDK】

☝
※1階の洋室は、車庫に変更も出来るようにあえてリフォームはしておりません。
【設 備】
●システムキッチン ●システムバス ●シャワー付きトイレ2か所
●シャンプードレッサー ●ランドリールーム ●全居室照明器具(LED)付き
●上水道・下水道 ●都市ガス
【場 所】


