不動産情報
株式会社新東陽では、滋賀県大津市を中心に土地・戸建の分譲販売を行なっております。
土地と建物がセットになったお得な建売プランもございます。
建物分譲
【ご成約済み】長浜市元浜町建売
- 種別
- 建売
- 価格
- ご成約済
- 面積
- 土地113.69㎡ 34.40坪 / 建物97.70㎡ 29.55坪
- 交通
- JR長浜駅
- 所在地
- 長浜市元浜町303(住居表示27-34)
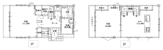
長浜市元浜町【建売】物件概要
●所在地:長浜市元浜町303(住居表示27-34)●土地面積:113.69㎡●建物面積:97.70㎡●構造:木造2階建●築年月:2021年(令和3年)2月完成予定●設備:上水道、下水道、都市ガス●洗髪洗面台、1坪サイズシステムバス、シャワートイレ/高断熱住宅仕様、ペアガラス、樹脂サッシ●用途地域:商業●接道状況:東●付帯権利:無●接道方向等:幅員3.4m・公道東側5.8m接道●現況:建築中●引渡年月日:2021年2月●特記事項:曳山保存地区(参加要請地域)●備考:広告転載、ネット可




